Estudio Proun
Arquitectos
Contacto
Equipo
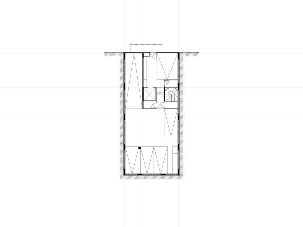
Edificio en Barrio Cordón Norte
agosto 7, 2025
Vivienda colectiva
Fase: estudio de factibilidad
Ubicación: Uruguay y Fernández Crespo, Barrio Cordón, MVD
Me gusta
Cargando…
←
Reciclaje en Barrio Sur
Edificio en Barrio Centro
→
Cargando comentarios...
Escribe un comentario...
Correo electrónico (Obligatorio)
Nombre (Obligatorio)
Web
Rebloguear
Suscribirse
Suscrito
Estudio Proun
Suscríbeme
¿Ya tienes una cuenta de WordPress.com?
Inicia sesión
.
Estudio Proun
Suscribirse
Suscrito
Regístrate
Iniciar sesión
Copiar enlace corto
Denunciar este contenido
Ver la entrada en el Lector
Gestionar las suscripciones
Contraer esta barra
%d